Stage 1A Lot 2
This well positioned corner site is ideally suited for a double-storey home with up to four bedrooms. Enjoy close proximity to waterfront amenities and the future Port Nikau town centre, as well as handy access to the local boat ramp, superyacht marina, and future Port Nikau park facilities.
Port Nikau’s easy, low-maintenance sections promise more time to enjoy life, with a community design that encourages sustainability through initiatives such as community gardens, reduced travel needs and the opportunity to build an energy efficient home.
Pre-Approved Plans for This Lot
To make building your new home even easier, we’ve worked with architects to develop a range of pre-approved house designs to suit each section. These plans are ready to go, creating low-maintenance living and making the building process as simple as possible.
We encourage you to reach out to our building partners to discuss these plans as part of the House and Land packages. Alternatively, you can register your interest for a section and design directly with Port Nikau.
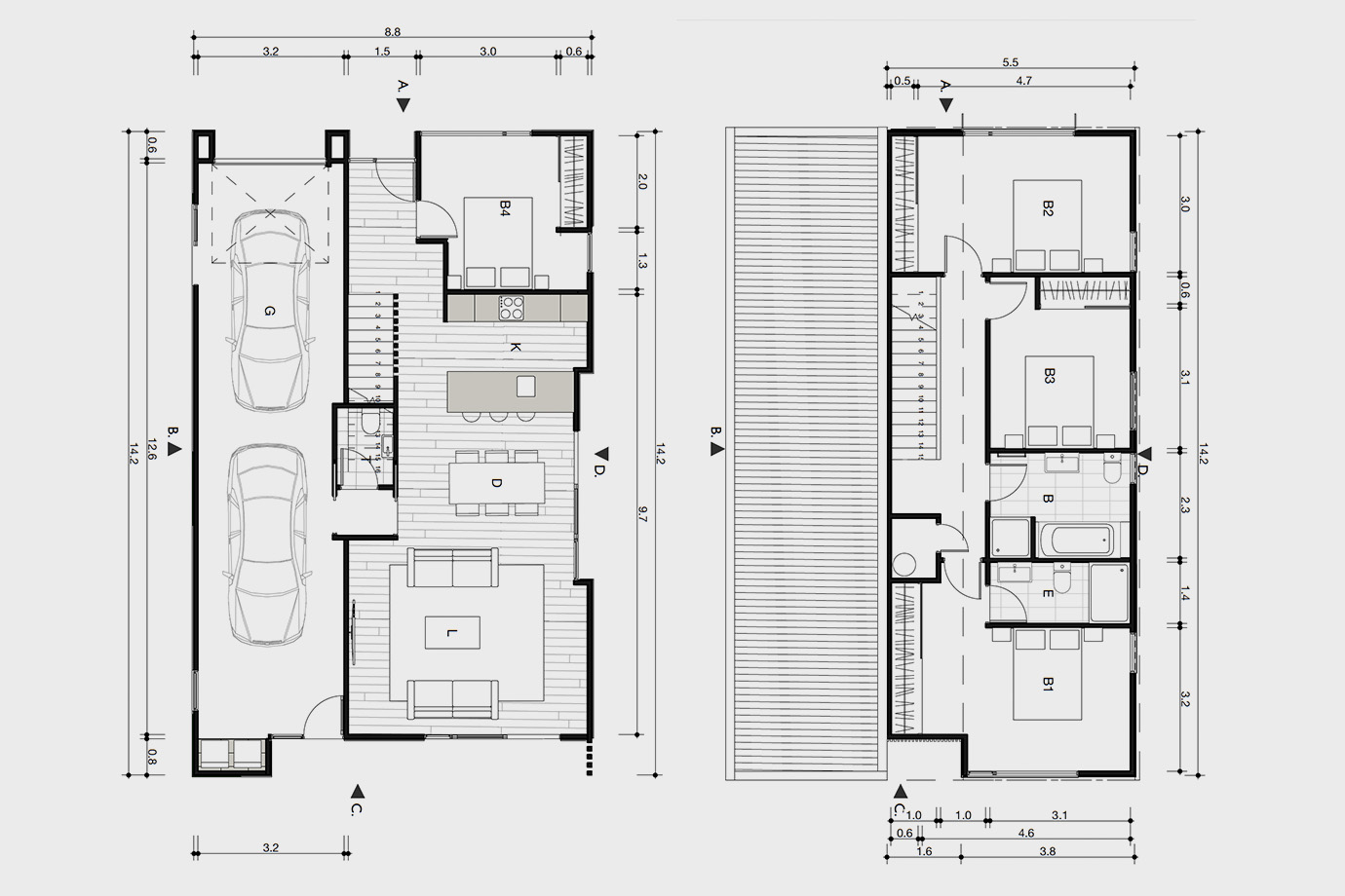
4.2A
4.2A
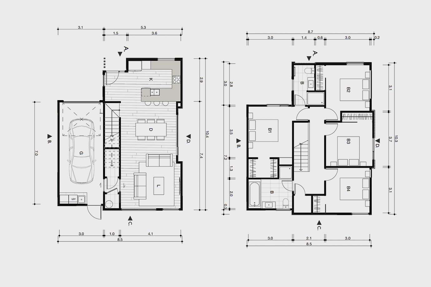
4.2B
4.2B
4.2B
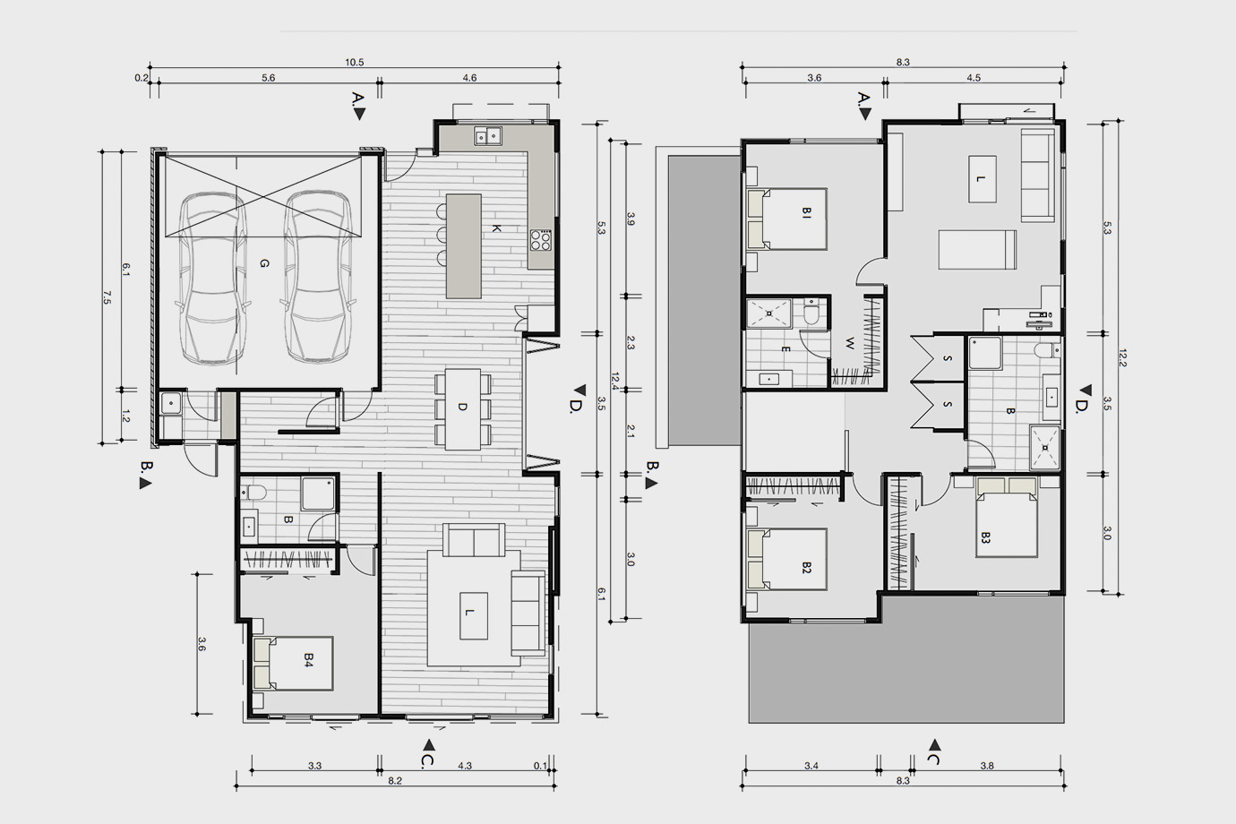
4.2C
4.2C
4.2C
Explore Sections For Sale
Strand House and Land Packages
Easy Living at Port Nikau
For Sale From $849,000
Cambridge House and Land Packages
Port Nikau Charmer
For Sale From $779,600
Stage 1A Lot 15
Live The New Port Nikau Lifestyle
For Sale $868,000
Signature H&L Package
Surety in Investment in Port Nikau
For Sale $865,000
Sentinel H&L Package
Elevated Living in Port Nikau
For Sale $1,095,000 (Lot 2*)
Your Perfect Base on Whangarei Harbour
Your Perfect Base on Whangarei Harbour
For Sale from $784,300
Cambridge House and Land Packages
Launch Your Lifestyle
For Sale $860,000
Innovation House and Land Packages
The Harbour Haven
For Sale $837,000 (Lot 16*)
Showhome Investment Opportunity
Showhome Investment Opportunity!
For Sale $972,000
Modern Living in Port Nikau
Modern Living in Port Nikau
For Sale from $795,200
Stage 1A Lot 17
Start Fresh, Live Local
For Sale $869,000 (Lot 17)
STAGE 1A LOT 7
Discover Your Golden Opportunity
For Sale $799,000
Stage 1A Lot 5
SOLD
Stage 1A Lot 4
SOLD
Sentinel House and Land Packages
Waterfront Living
For Sale $894,000 (Lot 15*)
House and Land Packages

Easy Living at Port Nikau
For Sale From $849,000

Port Nikau Charmer
For Sale From $779,600

Live The New Port Nikau Lifestyle
For Sale $868,000